Низкорамный полуприцеп - возможность аренды Meusburger 3-Achs-Tele-Semi mit 1 Paar Radmulden und hydr. Rampen
Опубликовано: 24д.
Опубликовано: 24д.
Лизинг
Доступно по запросуZu jedem gebrauchten Auflieger erhalten Sie einen aktuellen & vollständigen Inspektions- und Funktionsbericht.
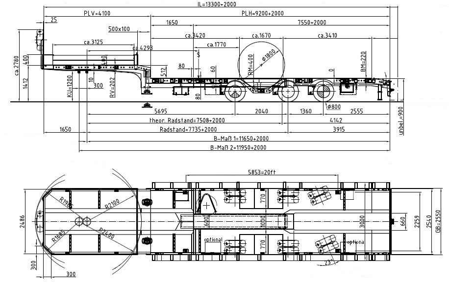
Fahrgestell:
-Stabile Stahlrahmenschweißkonstruktion mit vorderer Rahmenkröpfung und ebener Ladefläche --mit Abschrägung hinten ca. 500x100 mm
-Rahmenhals 200 mm mit abgeschrägten Ecken vorne
-Schräge Ende Schwanenhals ca. 500 x 100 mm (Steigrippen auf Außenrahmen im Bereich hintere Abschrägung)
-2 Königszapfenstellungen mit auswechselbarem 2“-Königszapfen
-Außenrahmen nach außen geschlossen als Lochaußenrahmen
-Ladefläche mit ausziehbarem Zentralrahmen, ausziehbar um ca. 2.000 mm je 500 mm pneumatisch verriegelbar
-Rahmen vor und nach Teilung mit Stufe 80x80mm
-Verstärkter Rahmenausführung / Punktlast im eingeschobenen Zustand im Schwerpunkt
-Ohne ausziehbare Verbreiterungen in der Ladefläche, jedoch vorbereitet zur nachträglichem Montage (=Führungsrohre im Rahmen eingeschweißt)
-Mit Baggermulde (ohne Abdeckung), Tiefe ca. 220 mm, Breite ca. 600 mm, ca. nach 2. Achse beginnend bis Ende Fahrzeug
-1 Paar Radmulden zwischen 1. und 2. Achse Stahlabdeckungen (Abdeckungen mit -Körapurbeschichtung), Tiefe ca. 400 mm
-Unterfahrschutz = verlängertes Abschlussblech
-Fallhubstützen hinten
Rampen:
-2 Stück 2-teilige Auffahrrampen in Sonderausführung mit mechanischer Streckung
-Länge ca. 2.850 mm plus 1.850 mm, mit hydraulischem Rampenhebewerk (nur in Verbindung mit Elektrohydraulikaggregat)
-Breite ca. 800 mm
-Holzbelag
-Inkl. Steigrippen auf Auffahrrampen
-In Fahrtstellung mit Spanngurten arretierbar
-Betätigung mittels Steuerhebel hinten in FR rechts montiert
-Seitlich hydraulisch verschiebbar
Boden:
-35 mm Lärchen-Holzboden mit Alu-Omega-Profilen
Stützwinden:
-Mech. 24 to Stützwinden mit 1-Seiten-Bedienung und Schubausgleich
Achsen, Lenkung und Bereifung:
-BPW-Luftfeder-Achsen, je 10 to Achslast, Balg-Durchmesser 360 mm
-S-Nockenbremse 300/200 mm, asbestfreie Bremsbeläge
-Automatischer Gestängesteller
-Hub- und Senkeinrichtung mit Gesamthub ca. 200 mm
-2. Fahrtstellung über Kugelhahn +50mm
-1. Achse Liftachse (über EBS verkabelt), Bestätigung vollautomatisch mit mechanischer Notbetätigung über Taster am Auflieger
-3. Achse als reibungsgelenkte Nachlaufachse mit elektrischer und mechanischer Sperre
-12 Stahlscheibenräder, 10-Loch, mit Einpresstiefe mittenzentriert
-12 Reifen 245/70 R 17,5 143/141J, schlauchlos
-Inklusive Reifendrucküberwachung
Kotflügel:
-Blechkotflügel mit Clear-Pass
Bremsanlage:
-Zweileiterbremse mit EBS-E inkl. RSS
-EBS (WABCO 4S3M)
-Federspeicherfeststellbremse
-Luftanschluss gelb / rot
Elektroausstattung:
-Gemäß KZF-Gesetz
-24 Volt. 2x 7-polige und 1x 15-polige Steckdosen
-2 Stück Mehrkammer-Schlussleuchten im Abschlussblech
-Seitliche Markierungsleuchten
-1 ausziehbare Halterung für Rundumleuchte
-1 Stück 7-polige Steckdosen an Abschlussblech hinten für Überhangbeleuchtung
Lackierung:
-Stahlgranulatreinigung, Spritzverzinkung des Fahrgestelles und Grundierung
-Lackierung Fahrgestell/Radnaben/Außenrahmen in DB 7350 Novagrau
-Kunststoffteile schwarz unlackiert
-Felgen: werksilber
-Reflexstreifen seitlich und hinten in gelb
Zubehör:
-Auf dem Schwanenhals Bordwände und Rückwand steckbar ca. 400 mm hoch
-Reserveradhalterung
-Seitlicher Alu-Anfahrschutz
-4 Unterlegkeile samt Halterung
-Längliche Kennzeichenhalterung im Abschlussblech
-1 ECE-Tafel am Heck steckbar
-11 Paare ZK-Module 10t seitlich:
-2x auf dem Schwanenhals
-2x auf der Ladefläche vor dem Auszug
-7x nach dem Auszug
-Ohne Abschleppringe hinten
-Ausziehbare Warntafeln inkl. je 3 Stück Positionslampen, vorne an Sattelstützwinden und hinten vor Abschlussblech, stufenlos ausziehbar bis Ladebreite 4.500 mm
-4 Stück in Rungentaschen auf der Ladefläche steckbare Aufnahmen für Warntafeln
-6 Paare Rungentaschen seitlich für Steckrungen 100x50 mm
-2 Stück Rungentaschenquerreihen für Steckrungen 100x50 mm auf Schwanenhals von -Außenrahmen nach innen bis zum Hauptrahmen (1x vor- und 1x nach Königszapfenpositionen)
-3 Stück Rungentaschenquerreihen für Steckrungen 100x50 mm auf der Ladefläche von Außenrahmen nach innen bis zum Hauptrahmen (1x vor dem Auszug, 1x nach dem Auszug und 1x nach 3. Achse)
-2 Paar Stahlplatten in der Ladefläche für Containerverrieglungen zur Aufnahme von 1x 20ft Container
-Gummi-Schürze auf Unterfahrschutz montiert
-Vorbereitung (=Leitungsverlegung NATO-Kabel sowie Lochbild für nachträgliche Montage NATO Dose vorne am Abschlussblech sowie Halter am Fahrzeug) zur nachträglichen Monate Elektrohydraulikaggregat in Fahrtrichtung rechts hinten für evtl. Bedienung Auffahrrampen
Это предложение носит исключительно информационный характер. Пожалуйста, подтвердите детали непосредственно у продавца.
Выбрав транспортное средство, которое вас интересует на Truck1.eu, вы можете связаться с продавцом, используя контактную форму или позвонив напрямую по предоставленному номеру. Выберите способ, который вам удобнее.
Обратитесь к продавцу, чтобы узнать больше о наличии транспортного средства, его техническом состоянии и актуальной цене, так как объявления не всегда содержат полные сведения. Запросите последние сервисные записи или отчеты об осмотре, чтобы лучше понять текущее состояние транспортного средства.
Воспользуйтесь функцией сравнения на Truck1, чтобы оценить аналогичные транспортные средства. Это поможет определить, конкурентоспособна ли цена и соответствует ли она рыночным трендам. Обратите внимание на закономерности в ценах и характеристиках для принятия обоснованного решения.
При покупке транспортного средства онлайн важно убедиться в надежности продавца. Ищите положительные отзывы и успешные сделки. Используйте иконки "Статус дилера" на Truck1, чтобы получить информацию о репутации продавца.
Если это возможно, постарайтесь лично посетить продавца для осмотра транспортного средства. Также рекомендуется организовать независимую проверку перед покупкой, чтобы выявить возможные проблемы, которые могут быть не видны на фотографиях или не указаны в объявлении.
Подпишите подробный договор купли-продажи, чтобы защитить свои права и подтвердить условия сделки.
Оплачивайте только после подписания договора купли-продажи. Сделать небольшой залог для бронирования транспортного средства — это обычная практика, но действуйте осторожно.
Убедитесь, что продавец надежный. Соберите о нём как можно больше информации: почитайте отзывы, посмотрите рейтинги предыдущих покупателей. На сайте Truck1 ищите значки проверенных продавцов — это сделает вашу покупку безопаснее.
Воспользуйтесь инструментом для сравнения цен на похожие транспортные средства. Если цена сильно отличается от рыночной, это может говорить о каких-то проблемах или о мошенничестве.
Задавайте продавцу все интересующие вас вопросы о прошлом транспортного средства и его эксплуатации. Добросовестный продавец всегда готов поделиться всей необходимой информацией.
Организуйте осмотр и тест-драйв, обратите внимание на любые следы износа и повреждений. Стоит подумать о привлечении профессионального механика для проведения предпродажной проверки, чтобы выявить все скрытые проблемы.
Прежде чем совершить покупку, убедитесь, что у вас есть подробный договор купли-продажи, в котором прописаны все условия. Используйте безопасные методы оплаты и тщательно проверяйте детали транзакции, чтобы защитить себя от мошенничества.
Лизинг
Доступно по запросу
Это предложение носит исключительно информационный характер. Пожалуйста, подтвердите детали непосредственно у продавца.
Выбрав транспортное средство, которое вас интересует на Truck1.eu, вы можете связаться с продавцом, используя контактную форму или позвонив напрямую по предоставленному номеру. Выберите способ, который вам удобнее.
Обратитесь к продавцу, чтобы узнать больше о наличии транспортного средства, его техническом состоянии и актуальной цене, так как объявления не всегда содержат полные сведения. Запросите последние сервисные записи или отчеты об осмотре, чтобы лучше понять текущее состояние транспортного средства.
Воспользуйтесь функцией сравнения на Truck1, чтобы оценить аналогичные транспортные средства. Это поможет определить, конкурентоспособна ли цена и соответствует ли она рыночным трендам. Обратите внимание на закономерности в ценах и характеристиках для принятия обоснованного решения.
При покупке транспортного средства онлайн важно убедиться в надежности продавца. Ищите положительные отзывы и успешные сделки. Используйте иконки "Статус дилера" на Truck1, чтобы получить информацию о репутации продавца.
Если это возможно, постарайтесь лично посетить продавца для осмотра транспортного средства. Также рекомендуется организовать независимую проверку перед покупкой, чтобы выявить возможные проблемы, которые могут быть не видны на фотографиях или не указаны в объявлении.
Подпишите подробный договор купли-продажи, чтобы защитить свои права и подтвердить условия сделки.
Оплачивайте только после подписания договора купли-продажи. Сделать небольшой залог для бронирования транспортного средства — это обычная практика, но действуйте осторожно.
Убедитесь, что продавец надежный. Соберите о нём как можно больше информации: почитайте отзывы, посмотрите рейтинги предыдущих покупателей. На сайте Truck1 ищите значки проверенных продавцов — это сделает вашу покупку безопаснее.
Воспользуйтесь инструментом для сравнения цен на похожие транспортные средства. Если цена сильно отличается от рыночной, это может говорить о каких-то проблемах или о мошенничестве.
Задавайте продавцу все интересующие вас вопросы о прошлом транспортного средства и его эксплуатации. Добросовестный продавец всегда готов поделиться всей необходимой информацией.
Организуйте осмотр и тест-драйв, обратите внимание на любые следы износа и повреждений. Стоит подумать о привлечении профессионального механика для проведения предпродажной проверки, чтобы выявить все скрытые проблемы.
Прежде чем совершить покупку, убедитесь, что у вас есть подробный договор купли-продажи, в котором прописаны все условия. Используйте безопасные методы оплаты и тщательно проверяйте детали транзакции, чтобы защитить себя от мошенничества.

























